A plan for 3BHK house needs clever design to be stylish and functional.
Whether it’s a compact city home or a sprawling suburban retreat, getting the layout right is key.
From optimizing space to ensuring proper ventilation, many factors shape the perfect 3BHK house plan.
Should you go for an open design or separate rooms? Do you need a study or a balcony? Let’s explore the essentials to craft a 3 bedroom floor plan house that truly fits your lifestyle.

TL;DR: For 3BHK House Plan
Looking for the perfect plan for 3BHK house? This guide covers everything you need to create a stylish and functional 3BHK house plan suited to your lifestyle.
Whether you're designing a compact city home or a luxurious bungalow, discover space-smart ideas, vastu tips, and cost-effective solutions.
Explore a modern 3BHK house design with open layouts, pooja rooms, or sustainable features.
From compact to spacious plots, find the right 3 bedroom floor plan house for your needs.
Need a personalized building plan for a 3 bedroom house? Our experts at Alacritys can help you design the dream home that blends comfort, style, and efficiency.
What Plot Size Do You Need For A 3BHK Home?
Choosing the right plans for 3BHK house depends on the available space.
A well-planned 3BHK home plan ensures comfort and functionality. The plot size directly affects room dimensions, ventilation, and aesthetics.
Let’s explore the ideal sizes for a 3BHK house design based on different requirements.
- 900-1050 sq. ft. – This is ideal for compact homes, requiring space-saving solutions. A 3 bedroom floor plan house at this size often includes an open layout, multifunctional furniture, and smart storage.

- 1400-1600 sq. ft. – A balanced 3BHK floor plan offers dedicated living, dining, and utility areas. A 3BHK house plan in 1500 sq ft is perfect for mid-sized families, ensuring comfortable living spaces.

- 1800+ sq. ft. – Larger homes allow for luxury features like gardens, entertainment rooms, and balconies. A building plan for 3 bedroom house at this scale provides ample space for customization.

Why does plot size matter? A 3 bedroom house plan east facing may require different zoning than a 3BHK house plan ground floor.
The number of floors, 3 bedroom house plan 1000 sq ft, or 3 bedroom house plan 1200 sq ft all influence the final design.
See How We Can Reveal Fantastic Designs For All Needs!
- Interior Design - Enhance interiors with real result.
- Architecture - Revamp lifestyle with genuine ideas.
- Landscape - Elevate senses, ensure fair designs.
- Vastu - Calm anxiety, apply science correctly.
Whether you prefer a 3BHK house plan with pooja room or a 3BHK house plan with vastu, selecting the right dimensions ensures a functional, well-ventilated home.
Looking for a customized modern 3BHK floor plan? Our experts at Alacritys Interior Design can design the best 3BHK house design suited to your lifestyle.
Let’s create the perfect 3BHK home design together!
What Makes A 3BHK Floor Plan Functional?
A well-designed home isn’t just about looks—it’s about how it works for you! A 3bhk house plan should be practical, comfortable, and suited to your lifestyle.

The right plan for 3bhk house ensures smooth movement between rooms and maximizes space. So, what should you focus on?
- Smart zoning – A good 3 bedroom floor plan house separates private and common spaces for privacy and flow.
- Open vs. traditional layouts – A modern 3bhk floor plan feels spacious, while a classic layout offers coziness.
- Storage solutions – Built-in wardrobes and modular kitchen cabinets enhance a 3bhk home design.
- Natural lighting & ventilation – A well-planned 3bhk floor plan allows better airflow and brightness.
- Outdoor integration – A 3bhk house design with a balcony or garden adds fresh air and relaxation.
A balanced building plan for 3 bedroom house prioritizes privacy, openness, and storage. Whether you choose a 3bhk house plan ground floor or a two storey house design modern, an efficient layout makes your home more enjoyable!
Now that you know what makes a 3BHK floor plan functional, let’s explore some of the best 3BHK floor plans for different plot sizes, ensuring the perfect balance of space, comfort, and efficiency for your home.
Best 3BHK Floor Plans For Different Plot Sizes
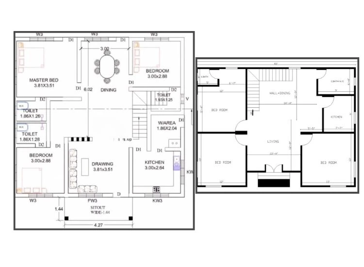
1. Compact 3BHK House Plans (800-1200 sq. ft.)
Designing a 3bhk house plan for a smaller plot requires smart space utilization.
A well-planned 3bhk floor plan ensures functionality without compromising comfort. How do you make a 3bhk house design feel spacious?

- Open-plan living & dining – A plan for 3bhk house with fewer walls creates a seamless flow.
- Minimal corridors – Maximizing usable space improves the efficiency of a 3bhk house plan.
- Multi-functional rooms – A guest room doubling as a home office optimizes a 3 bedroom floor plan house.
- Smart furniture choices – Foldable and modular furniture enhance flexibility in a 3bhk layout.
- Balcony or terrace – Adding an outdoor element elevates a 3bhk house plan ground floor.
Example: A 3bhk house plan in 1000 sq ft with an open kitchen, built-in storage, and natural lighting for a spacious feel. A well-optimized 3bhk design plan makes small homes feel big!
2. Standard 3BHK House Plans (1200-1800 sq. ft.)
A 3bhk home plan in this range offers a balanced mix of space and functionality.
With a well-planned 3bhk floor plan, you get designated areas for work, relaxation, and entertainment. What makes this size ideal?

- Separate living & dining zones – A well-structured plan for 3bhk house ensures better organization.
- Dedicated study/prayer room – A 3bhk house plan with pooja room adds extra functionality.
- Balcony or patio space – Enhances outdoor living in a 3 bedroom floor plan house.
- Kitchen with utility area – Essential for efficiency in a 3bhk home design.
- Spacious bedrooms – Comfortably designed for privacy in a building plan for 3 bedroom house.
Example: A 3bhk house plan in 1500 sq ft featuring a modular kitchen, playroom, and garden space. The right 3bhk planning creates a perfect home for modern families!
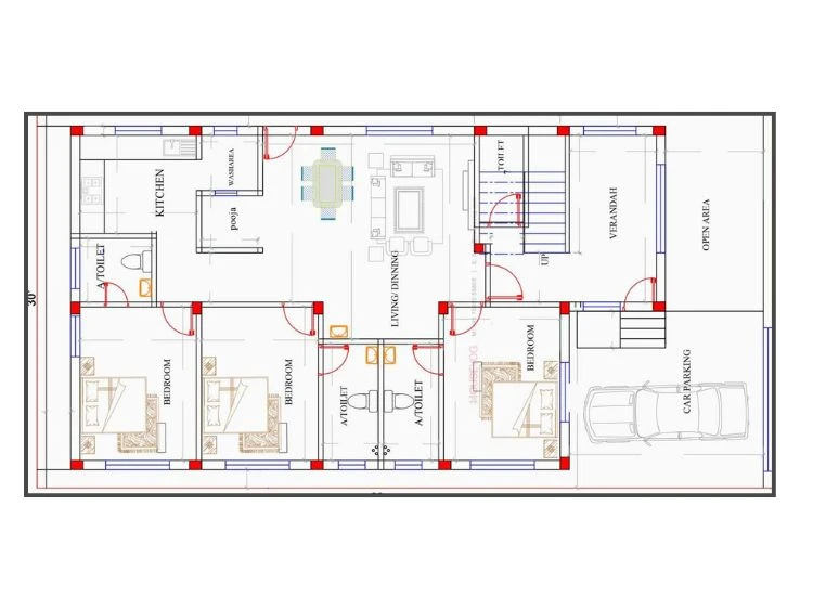
3. Large 3BHK House Plans (1800+ sq. ft.)
A 3bhk house design in this size category offers luxury, comfort, and spacious living. With a well-structured 3 bedroom floor plan house, you can include premium features for a high-end lifestyle. What makes it stand out?

- Expansive master bedroom – Includes a walk-in closet & en-suite bath in a 3bhk house plan.
- Entertainment zones – Home theater, gym, or library enhance a modern 3bhk floor plan.
- Open-concept kitchen – An island counter adds style & efficiency to a 3bhk home design.
- Dedicated guest quarters – Ideal for families in a building plan for 3 bedroom house.
- Spacious balconies & terraces – Seamlessly integrate outdoor spaces in a 3bhk floor plan.
Example: A 3bhk house plan in 2000 sq ft featuring a private terrace, multiple balconies, and an energy-efficient layout. A well-planned 3bhk bungalow design brings both elegance and practicality!
Want a 3BHK layout customized for YOUR plot? Our experts at Alacritys can design a space that blends functionality, aesthetics, and comfort. Get Your Custom Floor Plan Today!
How To Design A Vastu-Compliant 3BHK Home Plan?
A 3bhk house plan with vastu ensures positive energy, better functionality, and a harmonious living environment.

When designing a 3bhk house design, it's essential to follow Vastu principles for room placements and directions.
The building plan for 3 bedroom house should align with natural elements to enhance well-being and prosperity.
- Bedrooms – The master bedroom should be in the southwest for stability, while children's rooms can be in the west or northwest.
- Kitchen – A southeast-facing kitchen is ideal for good energy flow and efficient cooking.
- Entrance – A north or east-facing main door invites prosperity and positive vibes.
- Living & Dining Areas – The center of the home is perfect for gathering and relaxation.
- Pooja Room – In a 3bhk house plan with pooja room, it should be in the northeast for spiritual harmony.
A well-planned 3bhk home design following Vastu principles improves ventilation, lighting, and spatial organization.
Whether you're working on a modern 3bhk floor plan or a 3bhk floor plan with traditional elements, a Vastu-compliant layout can create a peaceful and balanced home environment.
Should You Choose A Single-Storey Or Double-Storey 3BHK Floor Plan?
Choosing between a single-story and duplex house design depends on your space, budget, and lifestyle needs.
A single-floor 3bhk house plan is ideal for families seeking easy accessibility, while a duplex house elevation design offers privacy and more living space.

If you have a smaller plan for 3bhk house, the best 3bhk floor plans with open layouts can optimize space.
A single-story 3bhk house plan ground floor is best suited for elderly-friendly designs, offering a seamless flow without stairs.
On the other hand, a two storey house design modern concept can add a stylish appeal while providing more room for extended families.
A 3bhk house plan in 2000 sq ft duplex might include a 3 bedroom house plan 2 floor layout with a terrace, balconies, and extra storage. Your choice should align with your space requirements, comfort, and future expansion plans.
Need expert guidance? Our team can help design the best 3bhk house design for your dream home!
What Is The Cost Of Building A 3BHK House?
Planning a 3bhk house design involves not just selecting the right layout but also understanding the overall budget.

The cost of constructing a 3 bedroom floor plan house depends on factors like material choices, labor charges, and interior finishes.
A well-thought-out building plan for 3 bedroom house ensures that you optimize expenses while maintaining quality.
- Architectural & Design Costs – ₹10,000 to ₹50,000 for customized 3bhk floor plan designs.
- Construction Costs – Varies based on materials used for the 3bhk house plan ground floor and upper levels.
- Interior & Furnishing Budget – Optimizing style while keeping costs manageable.
- Additional Costs – Landscaping, smart home automation, and sustainability features.
How to Save Money? Choosing energy-efficient materials, modular designs, and space-saving solutions in a modern 3bhk floor plan can help cut costs.
Prefabricated structures and innovative 3bhk home design elements also play a role in budget optimization.
Want a detailed estimate for your dream home? Our experts at Alacritys can help! Get a Customized Budget Plan Today!
How To Add Sustainability & Smart Features To Your Home?
Making your 3bhk house design sustainable is a smart choice for the future. Using eco-friendly materials like bamboo, recycled bricks, and energy-efficient windows can reduce environmental impact.

A modern 3bhk floor plan should also incorporate rainwater harvesting, solar panels, and efficient insulation to save energy costs.
Smart home automation is another way to improve convenience and efficiency. Integrating security systems, climate control, and automated lighting in your 3bhk home plan makes daily life easier.
Choosing sustainable flooring, energy-saving appliances, and water-efficient fixtures enhances both comfort and cost-effectiveness.
A 3 bedroom floor plan house with proper ventilation and natural lighting reduces reliance on artificial cooling.
Green spaces like rooftop gardens or balcony planters can improve air quality. Whether designing a plan for 3bhk or upgrading an existing home, sustainable choices benefit both the planet and your lifestyle.
Want a custom 3bhk house plan with pooja room or a luxurious duplex? Our team at Alacritys can help you design the perfect home. Let’s Create Your Dream 3BHK!
Key Takeaways For 3 BHK House Plan
- A smart plan for 3BHK house blends style, space, and functionality.
- Choose your 3BHK house plan based on plot size: 800–2000+ sq. ft.
- Modern 3BHK house design includes open layouts, balconies, and smart storage.
- A well-zoned 3 bedroom floor plan house ensures comfort and privacy.
- Select a building plan for 3 bedroom house that supports vastu and future expansion.
- Control construction cost with energy-efficient materials and modular design.
Final Thoughts & Expert Tips On 3 BHK Floor Plans
A building plan for 3 bedroom house should match your lifestyle and plot size. Whether compact or spacious, the right 3bhk plan ensures comfort, functionality, and aesthetics. Optimize every square foot for storage, natural light, and flexibility.
How Alacritys Can Help You Design Your Dream 3BHK?
Designing a home can be overwhelming, but you don’t have to do it alone. Here’s how Alacritys makes it easy:
- Personalized 3BHK layouts based on your plot size & budget.
- Vastu-compliant and modern designs for a balanced home.
- End-to-end services – From planning to interiors.
- Smart, sustainable, and budget-friendly solutions.
Looking for the perfect 3BHK house plan? Let’s create it together! Contact Alacritys today.
Does this thoughtfully designed layout align with your dream of a perfect 3BHK home?
- What key factors should you consider when selecting the best 3BHK house design for your family’s needs?
- How can you optimize a 3BHK house plans to maximize natural light and ventilation?
- What are the advantages of choosing a duplex 3BHK floor plan over a single-story layout?
- How does Vastu-compliant 3BHK planning impact the functionality and energy flow of your home?
- What are the most effective space-saving solutions for compact 3BHK floor plans in an urban setting?
See How We Can Reveal Fantastic Designs For All Needs!
- Interior Design - Enhance interiors with real result.
- Architecture - Revamp lifestyle with genuine ideas.
- Landscape - Elevate senses, ensure fair designs.
- Vastu - Calm anxiety, apply science correctly.
FAQs
800-1200 sq. ft. is compact, 1200-1800 sq. ft. is standard, 1800+ sq. ft. is luxury?
Use mirrors, open layouts u0026amp; space-saving furniture.
Minimal corridors u0026amp; an open kitchen-living concept.
Alacritys can help with tailored designs!
While a compact 3BHK layout can be created within 1000 sq ft, it may compromise room sizes and functionality. For a more spacious and practical 3BHK home plan, options around 2000 sq ft are often preferred.
The minimum size for a well-structured 3BHK home plan typically starts at around 900–1000 sq ft, depending on the layout efficiency. However, for a comfortable 3BHK design plan, a larger space like 2000 sq ft offers better room dimensions and flow.
The cost of a 3BHK house plan in 2000 sq ft can vary based on location, materials, and finishes, generally ranging from moderate to premium budgets. A well-optimized 3BHK layout helps manage costs while maintaining functionality and style.