Thinking Of A South-Facing House? Here’s Why It’s A Smart Choice
Ever walked into a home that instantly made you smile? That sunny warmth you felt could be more than just cozy interiors—it might be the direction.
A south facing home welcomes sunshine all day long. Let’s uncover why this house orientation is a golden pick for smart homebuyers and why you might want to consider it.

TL;DR: For South Facing House
A south facing house is ideal for those who value natural light, warmth, and vastu-friendly living.
It ensures sunlight throughout the day, making interiors bright and energy-efficient.
A well-designed south facing house plan enhances space utilization and comfort.
When built with a south facing house vastu plan, it attracts positivity, peace, and prosperity.
Additionally, a modern south facing house elevation boosts the home’s visual appeal and supports solar energy usage.
Whether single floor or duplex, choosing this orientation offers practical benefits and spiritual harmony, making it a preferred choice for modern Indian families seeking functional and vastu-compliant homes.
Why South-Facing House Orientation Matters?
ver wondered why some homes feel warmer, brighter, or more peaceful than others? The direction a home faces—called house facing design—plays a big role in how light, heat, and energy flow inside.
A south facing house receives sunlight for most of the day. This makes it naturally bright and comfortable, especially in winter. Many families love the cozy warmth and positive vibes of these homes.

In India, the south facing house vastu plan is very important. People believe that good energy comes in when the house is built with the right rules.
That's why many choose a south facing house plan with vastu for better health and happiness. Not just that—builders create beautiful south facing house elevation designs that look amazing from the road.
Whether you want a duplex house plan south facing, a single floor home, or even a south facing house front elevation single floor, planning the right house plan south facing vastu makes your home both smart and spiritual.
Before we dive into the unique strengths of a south facing house, let’s first understand what it actually means in home design.
What Is A South-Facing House?
A south facing house means the main entrance or the front of the house faces the south direction. When you step out of your door, you’ll be facing the south.
This house facing design is popular in both traditional and modern homes. Many people choose this orientation for better sunlight and airflow.

A good south facing house plan is made by checking the sun’s path and the plot layout. Designers often match the south facing house elevation with lifestyle needs and climate.
You can find many house plans south facing that are perfect for warm or sunny regions. It’s important to follow the vastu of south facing house when designing rooms and entrance. When done correctly, a south facing house plan with vastu brings light, warmth, and energy into the home.
See How We Can Reveal Fantastic Designs For All Needs!
- Interior Design - Enhance interiors with real result.
- Architecture - Revamp lifestyle with genuine ideas.
- Landscape - Elevate senses, ensure fair designs.
- Vastu - Calm anxiety, apply science correctly.
In Indian Vastu, a south facing house is not bad—it's actually good if planned properly. The vastu for a south facing house recommends placing the entrance in specific zones for balance.
Many people ask, "Is a south facing house good?"—the answer depends on how it’s designed. A well-planned house plan south facing vastu can bring wealth, fame, and peace to your life.
Thinking of building your dream home with perfect orientation? [Consult Alacritys for expert house planning services.]
Now that you know what a south facing house is, let’s explore the real-world benefits it can bring to your life.
7 Benefits Of A South-Facing House
1. Abundant natural light all day
A south-facing home welcomes sunlight from morning till evening, making it bright and cheerful without extra lighting.
2. Better warmth in winters
Homes with a south facing house plan retain heat during cold months, keeping indoor spaces naturally warm and energy-efficient.
3. Perfect for solar panel installation
The direction supports clean energy. A well-planned south facing house elevation maximizes solar exposure for better performance.

4. Ideal garden and balcony placement
With the sun shining on the front side, you can grow plants and enjoy open spaces using house plan for south facing layouts.
5. Higher resale value in urban areas
Buyers often prefer south-facing house plans due to sunlight, energy savings, and vastu for a south facing house benefits.
6. Positive energy when built as per Vastu
A south facing house vastu plan with pooja room ensures peace, balance, and smooth energy flow in every corner of the home.
7. Beautiful front elevation possibilities
You can explore stylish south face house elevation or south facing house front elevation single floor ideas that boost your home’s curb appeal.
Popular South-Facing Layouts You Should Explore
When designing your south facing house, the layout is everything. A smart house plan south facing vastu can maximize sunlight, promote positive energy, and improve daily comfort.
Today, homeowners can choose from a variety of south facing house plans that match their lifestyle, plot size, and spiritual beliefs.
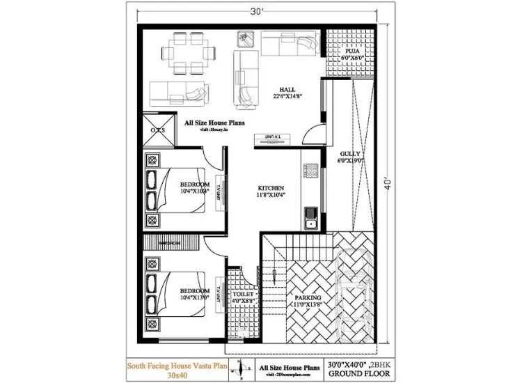
1. Single Floor 2BHK (Plot Size: 30x40 ft)
Key design ideas for this floor plan:
- Living room in the northeast
- Kitchen in southeast corner (ideal as per Vastu)
- Bedrooms in the southwest and northwest
- Common bathroom in the north or east
- Small pooja room in the northeast

2. Double Floor 3BHK (Plot Size: 30x50 ft)
Key design ideas for this floor plan:
- Ground floor: 1 bedroom + open kitchen + dining + living
- First floor: 2 bedrooms with balconies and attached bathrooms
- Staircase on the west or south side for better space optimization
- Skylight in the center for natural lighting
Floor plan idea:

3. Compact Duplex (Plot Size: 20x40 ft)
Key design ideas for this floor plan:
- South entry with foyer leading to open living area
- Stairs from living room, compact and curved to save space
- Bedrooms on first floor with family lounge
- Vertical garden wall on the south side for thermal insulation
Floor plan idea:

4. Modern Twin House (Plot Size: 40x60 ft divided into two 20x60 ft units)
Key design ideas for this floor plan:
- Mirror layout homes with shared wall
- Each unit: 2BHK with living + dining + open modular kitchen
- Bedrooms placed diagonally for privacy
- Shared garden or backyard
Floor plan idea:

5. Duplex Villa (Plot Size: 40x60 ft)
Key design ideas for this floor plan:
- Front lawn with car parking
- Living + guest room on ground, private bedrooms upstairs
- South-facing balcony with tinted glass to reduce heat
- Home office or library space on mezzanine
Floor plan idea:

6. 3BHK with Parking (Plot Size: 33x55 ft)
Key design ideas for this floor plan:
- The front 15 ft is reserved for the car park
- Raised plinth to reduce direct heat from the south
- Kitchen and dining in the southeast, living in the northeast
- All rooms with cross-ventilation
Floor plan idea:

7. 4BHK Double Floor Luxury Layout (Plot Size: 50x80 ft)
Key design ideas for this floor plan:
- Large open living-dining zone
- Two master bedrooms on each floor with walk-in wardrobes
- Double-height ceiling at the center
- South facade with shading devices and greenery buffer
Floor plan idea:

8. Single Floor L-Shaped 3BHK (Plot Size: 40x40 ft corner plot)
Key design ideas for this floor plan:
- Entry from the east, living in the northeast
- Kitchen in the southeast, bedrooms in the west and southwest
- Private courtyard within the ‘L’
- Ideal for small families
Floor plan idea:

9. Duplex (Plot Size: 30x60 ft)
Key design ideas for this floor plan:
1. Car parking and garden at the south-facing entrance
2. Combined staircase and dining access
3. Big master room with a walk-in closet and toilet
4. South-facing terrace garden
Floor plan idea:

10. G+1 Twin Duplex (Plot Size: 60x60 ft)
Key design ideas for this floor plan:
- Two attached duplex units with a shared center wall
- Each has separate entry, car park, living zone on ground floor
- Upper floors with 2 bedrooms + balconies
- Efficient use of space for joint families
Floor plan idea:

While these benefits sound exciting, not all south-facing houses are created equal. Design plays a major role in maximizing these advantages.
Key Design Tips For South-Facing Houses
1. Expansive windows on the south side maximize natural light. This is a key step in every well-designed south-facing house plan to ensure brighter interiors throughout the day.
2. Use sunshades, pergolas, or deep verandahs to reduce heat during summers. It’s especially helpful for warmer climates in a house design south facing layout.
3. Place living and dining rooms on the southern side to enjoy warmth and light, a common approach in modern south facing house plans and house plan for south facing homes.

4. Bedrooms and pooja room should face north, east, or northeast. This supports the vastu for a south facing house and keeps sleeping areas cooler and more peaceful.
5. Focus on a balanced and symmetrical south-facing house elevation design to ensure both aesthetic and energy flow benefits. Try combining vertical lines and earthy materials.
6. Follow a vastu-compliant layout like south facing house vastu plan with pooja room for spiritual and emotional harmony.
7. Use light or earthy colors in exteriors to reflect heat. This works well with modern south face elevation designs and adds charm to the south facing house front elevation single floor homes.

8. Plan roof space for solar panels, as south facing elevation gets max sun exposure. This adds long-term savings and value.
9. Elevations should match the plot orientation. For instance, a south road east facing house elevation requires a hybrid house facing design for proper light management.
10. Customize your layout using 3D designs to preview your south face house plan and avoid layout errors. You can consult pros to develop a duplex house plans south facing or compact layout.
11. Choose materials that help with thermal insulation in summer. This is important for comfort and energy-efficiency in your plan for south facing house.
12. Entrance placement matters – for vastu of south facing house, ensure the main door is in the 2nd or 3rd pada of the south wall for prosperity and positivity.
13. Explore trending front designs like modern, minimal or traditional south face front elevation to give your home a striking look from the outside.
Want to get the layout and interiors right for your south-facing home? [Talk to Alacritys’ design experts today.]
But what if you’re wondering whether a south facing house is the right fit for your lifestyle?
Who Should Choose A South-Facing House?
A south facing home is great for families who love bright spaces and warm sunlight. It’s perfect if you enjoy cozy winters, sunlit rooms, and growing plants on your balcony.
Professionals working from home can benefit too, as natural light boosts focus. People who believe in vastu of south facing house also find it a positive and growth-oriented choice.

If you plan smart with a south facing house plan, you can design it for both comfort and energy savings. A well-planned south facing house elevation adds beauty and value.
With a good south facing house vastu plan with pooja room, your home can feel peaceful and balanced.
It’s also a good fit if you want a custom house design south facing that’s stylish and vastu-compliant. Wondering if a south facing house is good or bad? It’s good when designed the right way.
Even though south-facing houses offer many pros, it's important to be aware of a few downsides too.
Possible Drawbacks Of A South-Facing House And How To Tackle Them
A south-facing house receives strong sunlight all day, which can cause overheating in summer if not planned properly.
Too much light may lead to glare on screens and can fade furniture and fabrics over time.
A poor layout or missing south facing house plan with vastu may create imbalance in energy and functionality.

People often ask, “Is a south facing house good?” The answer depends on design, climate, and vastu for a south facing house.
Using deeper balconies, plants, and shaded windows in your south facing house elevation helps block harsh sunlight.
Lighter wall colors and cooling materials in your south house design reduce heat impact indoors.
Following a proper south facing house vastu plan ensures comfort, positivity, and energy balance.
Whether you’re building a south facing duplex house plan or a south facing plan for a single floor, design choices matter a lot.
See How We Can Reveal Fantastic Designs For All Needs!
- Interior Design - Enhance interiors with real result.
- Architecture - Revamp lifestyle with genuine ideas.
- Landscape - Elevate senses, ensure fair designs.
- Vastu - Calm anxiety, apply science correctly.
A smart house facing design with well-placed windows and rooms helps reduce light issues while keeping spaces airy.
You can overcome most drawbacks of a south facing house with a well-thought-out house plan south facing vastu approach.
Confused about the right direction for your home? [Let Alacritys guide you with personalized vastu-compliant design solutions.]
With all this in mind, let’s summarize whether a south-facing home could be your perfect match.
Key Takeaways: For South Facing House Plan
- A south facing house brings all-day sunlight and natural warmth.
- A smart south facing house plan ensures better space and energy use.
- Following a south facing house vastu plan supports harmony and positivity.
- Ideal for solar panels, gardens, and bright indoor living.
- A well-designed south facing house elevation boosts curb appeal and value.
- Perfect for 2BHK, duplex, or single-floor layouts with vastu-compliant flow.
- High demand in urban areas due to light, warmth, and vastu benefits.
Conclusion: Is A South-Facing Home Right For You?
A south facing house gives more light, better energy, and space for beautiful gardens or terraces. It’s a smart pick for modern families who love well-lit, energy-efficient, and vastu-balanced homes.
However, remember that direction is only part of the plan. Good interiors, climate-smart materials, and proper south facing plan matter more.
Whether you want a south face front elevation, a peaceful pooja room, or sunny bedrooms, make sure every detail is designed wisely.
Ready to plan your home with the right orientation, aesthetics, and energy? [Book your design consultation with Alacritys today!]
What if every sunrise lit up your living room—would mornings feel more magical?
- Have you ever felt a difference in mood between a dark room and a sunlit space? Could your home's direction be affecting that?
- If you were to build your dream home today, would you consider the sun's path while choosing your house facing design?
- Which do you prefer in a home—cool shade or sun-soaked spaces? How would that influence your choice between north or south facing house?
- What matters more to you: Vastu alignment or modern energy-efficient design? Or can you have both with the right south facing house plan?
- Are you making the most of your balcony and terrace? Could a south facing house help you turn them into warm, green retreats?
FAQs
A south facing house is not bad. If planned as per u003cemu003evastu for a south-facing houseu003c/emu003e, it can bring fame, growth, and stability. Placement of rooms and entrance is key.
The biggest u003cemu003esouth facing house benefitsu003c/emu003e are all-day natural sunlight, better energy efficiency, ideal solar panel setup, and warmer spaces in winter.
Yes, in some urban areas, u003cemu003ehouse plans south facingu003c/emu003e may have higher value due to better light and resale potential. But cost also depends on design, elevation, and location.
Overlooking heat control, improper window placement, and not following u003cemu003evastu plan for south facing houseu003c/emu003e can reduce the comfort and energy efficiency of your home.
Yes, as per u003cemu003esouth facing house vastu plan with pooja roomu003c/emu003e, the ideal location for the pooja room is in the northeast corner of the home, even if the entrance is on the south.